Kompakte Mehrpumpen Druckerhöhungsanlage nach DIN 1988-500
Typ: Hydro MPC-E 3 CRE 32-1
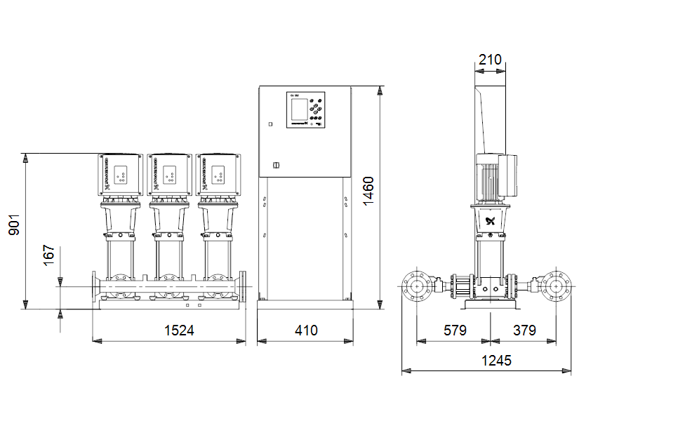
Anschlussfertige Druckerhöhungsanlage nach DIN 1988-500, mit 2-6 normalsaugenden vertikalen Kreiselpumpen der Baureihe CR(I)E. Pumpen sind ausgestattet mit servicefreundlicher hochverschleißfester Patronengleitringdichtung der Werkstoffpaarung SiC/SiC/EPDM und Ausbaukupplung (ab 11 kW). Edelstahlrohrverteiler (1.4571) im Aushalsverfahren orbitalverschweißt, mit:
  | 
| Motoren bis einschl. 11kW: | Oberflächengekühlter geräuscharmer Grundfos Permanentmagnetmotor mit Wirkungsgraden über den IE5/IES2 Grenzwerten (gem. IEC 60034-31). | |
| Motoren > 11 kW: | Oberflächengekühlter geräuscharmer Grundfos Asynchronmotor mit Wirkungsgraden gemäß IE3. | |
| Beide Motorvarianten sind mit einem integrierten Frequenzumformer ausgestattet. Die Motoren sind selbstüberwachend, kurzschlusssicher und benötigen keinen externen Motorschutz (IEC 34-11: | TP211). | |
CU 352 Steuerungseinheit, Hauptschalter und Sicherungsautomaten sind in einem Stahlschaltschrank (IP54) auf Edelstahlhaltern montiert.
Hochflexible Steuer- und Regeleinheit CU 352 mit:
  | 
Erweiterung der Ein-/Ausgänge mittels optionalem Zusatzkommunikationsmodul IO 351B. Mit dem IO351B Modul können z.B. Einzelstör- oder Einzelbetriebsmeldungen oder Anlagenwerte als 0-10V Signal weitergeleitet werden. Die wichtigsten CU 352 Hauptfunktionen sind:
  | 
Die wichtigsten CU352 Energiesparfunktionen sind:
  | 
Die wichtigsten CU 352 Sicherheitsfunktionen sind:
  | 
Grundfos Hydro MPC-E Anlagen müssen mit einem Membrandruckbehälter nach DIN 4807,T5 ausgestattet werden.
Druckerhöhungsanlagen werden ab Werk einer Nassprüfung mit desinfiziertem Wasser (0,1%
  | 
Während des Tests überprüft Grundfos kontinuierlich die Qualität des Testwassers. Da es nicht möglich ist, die Anlage nach dem Test vollständig zu entleeren und zu trocknen, muss sie vor dem Einsatz in einem Trinkwassersektor gründlich gespült werden, da sonst die Gefahr von Bakterienwachstum besteht. Dies gilt auch, wenn die Anlage über einen längeren Zeitraum stillgelegt war (siehe TrinkwV). Das Spülen sollte immer in Übereinstimmung mit der DIN EN 806-4 erfolgen. Kontaminiertes Trinkwasser gefährdet die Gesundheit.
Zusätzlich können auf Anfrage die Druckerhöhungsanlagen im Werk thermisch desinfiziert werden. Dazu werden die Anlagen und die Pumpen einzeln über mehrere Minuten mit über 76°C warmen Trinkwasser beaufschlagt.
Eine Prüfung der Druckerhöhungsanlagen im Werk nach erfolgter Nassprüfung auf Einhaltung der Grenzwerte der TrinkwV durch ein externes akkreditiertes Labor inkl. Erweiterung des Systems um Probenahmehähne zur fachgerechte Probenahme des Trinkwassers durch qualifiziertes und geschultes Personal ist auf Anfrage erhältlich.
| Maximale Förderhöhe: | 29 m | |
| Fördermedium: | Wasser | |
| Max. Betriebsdruck: | 16 bar | |
| Max. Förderstrom d. Anlage: | 144 m³/h | |
| Nennstrom der Anlage: | 18.6 A | |
| Motorbemessungsleistung: | 3 kW | 
Membranbehälter, Komponenten zur Wassermangel- überwachung und alternative Bedieneinheiten können aus der Zubehörliste ausgewählt werden.
Videos
Hier können Sie Videos hinzufügen.
Versand & Zahlung
Schneller und sicherer Versand ganz Europaweit
Wir versenden Ihre Bestellungen zuverlässig mit unseren Premium-Partnern DHL, DPD und Schenker. So erreichen Ihre Pakete Sie im Handumdrehen – ob um die Ecke oder an die entlegenste Adresse Europas.
Zahlungsarten
Wählen Sie aus unseren sicheren und flexiblen Zahlungsoptionen:
Rechnung für Geschäftskunden (B2B) – Zahlung nach Freigabe Ihrer Bestellung
PayPal – schnell und einfach, ohne direkte Weitergabe Ihrer Kontodaten
Vorauskasse – Überweisen Sie den Betrag im Voraus, wir versenden nach Zahlungseingang
Kreditkarte (Visa, MasterCard, American Express) – sicher und sofort belastbar
Alle Zahlarten sind durch moderne Verschlüsselungstechnologien geschützt und garantieren Ihnen maximale Sicherheit und Komfort.
GRUNDFOS Druckerhöhungsanlage Hydro MPC-E 3 CRE 32-1 Art. 99166943
GRUNDFOS Druckerhöhungsanlage Hydro MPC-E 3 CRE 32-1 Art. 99166943
        
        
        Unsere Vorteile
- Faire Preise – das ganze Jahr
 - Top-Markenqualität von führenden Herstellern
 - Sicherer & transparenter Versand
 - 2 % Skonto bei Zahlung per Vorkasse
 - Kompetente Beratung – telefonisch, per Mail oder persönlich
 
              
                
                Informationen
              
            Kompakte Mehrpumpen Druckerhöhungsanlage nach DIN 1988-500
Typ: Hydro MPC-E 3 CRE 32-1
Anschlussfertige Druckerhöhungsanlage nach DIN 1988-500, mit 2-6 normalsaugenden vertikalen Kreiselpumpen der Baureihe CR(I)E. Pumpen sind ausgestattet mit servicefreundlicher hochverschleißfester Patronengleitringdichtung der Werkstoffpaarung SiC/SiC/EPDM und Ausbaukupplung (ab 11 kW). Edelstahlrohrverteiler (1.4571) im Aushalsverfahren orbitalverschweißt, mit:
  | 
| Motoren bis einschl. 11kW: | Oberflächengekühlter geräuscharmer Grundfos Permanentmagnetmotor mit Wirkungsgraden über den IE5/IES2 Grenzwerten (gem. IEC 60034-31). | |
| Motoren > 11 kW: | Oberflächengekühlter geräuscharmer Grundfos Asynchronmotor mit Wirkungsgraden gemäß IE3. | |
| Beide Motorvarianten sind mit einem integrierten Frequenzumformer ausgestattet. Die Motoren sind selbstüberwachend, kurzschlusssicher und benötigen keinen externen Motorschutz (IEC 34-11: | TP211). | |
CU 352 Steuerungseinheit, Hauptschalter und Sicherungsautomaten sind in einem Stahlschaltschrank (IP54) auf Edelstahlhaltern montiert.
Hochflexible Steuer- und Regeleinheit CU 352 mit:
  | 
Erweiterung der Ein-/Ausgänge mittels optionalem Zusatzkommunikationsmodul IO 351B. Mit dem IO351B Modul können z.B. Einzelstör- oder Einzelbetriebsmeldungen oder Anlagenwerte als 0-10V Signal weitergeleitet werden. Die wichtigsten CU 352 Hauptfunktionen sind:
  | 
Die wichtigsten CU352 Energiesparfunktionen sind:
  | 
Die wichtigsten CU 352 Sicherheitsfunktionen sind:
  | 
Grundfos Hydro MPC-E Anlagen müssen mit einem Membrandruckbehälter nach DIN 4807,T5 ausgestattet werden.
Druckerhöhungsanlagen werden ab Werk einer Nassprüfung mit desinfiziertem Wasser (0,1%
  | 
Während des Tests überprüft Grundfos kontinuierlich die Qualität des Testwassers. Da es nicht möglich ist, die Anlage nach dem Test vollständig zu entleeren und zu trocknen, muss sie vor dem Einsatz in einem Trinkwassersektor gründlich gespült werden, da sonst die Gefahr von Bakterienwachstum besteht. Dies gilt auch, wenn die Anlage über einen längeren Zeitraum stillgelegt war (siehe TrinkwV). Das Spülen sollte immer in Übereinstimmung mit der DIN EN 806-4 erfolgen. Kontaminiertes Trinkwasser gefährdet die Gesundheit.
Zusätzlich können auf Anfrage die Druckerhöhungsanlagen im Werk thermisch desinfiziert werden. Dazu werden die Anlagen und die Pumpen einzeln über mehrere Minuten mit über 76°C warmen Trinkwasser beaufschlagt.
Eine Prüfung der Druckerhöhungsanlagen im Werk nach erfolgter Nassprüfung auf Einhaltung der Grenzwerte der TrinkwV durch ein externes akkreditiertes Labor inkl. Erweiterung des Systems um Probenahmehähne zur fachgerechte Probenahme des Trinkwassers durch qualifiziertes und geschultes Personal ist auf Anfrage erhältlich.
| Maximale Förderhöhe: | 29 m | |
| Fördermedium: | Wasser | |
| Max. Betriebsdruck: | 16 bar | |
| Max. Förderstrom d. Anlage: | 144 m³/h | |
| Nennstrom der Anlage: | 18.6 A | |
| Motorbemessungsleistung: | 3 kW | 
Membranbehälter, Komponenten zur Wassermangel- überwachung und alternative Bedieneinheiten können aus der Zubehörliste ausgewählt werden.
              
                
                Videos
              
            Videos
Hier können Sie Videos hinzufügen.
              
                
                Downloads
              
            
              
                
                Versand & Zahlung
              
            Versand & Zahlung
Schneller und sicherer Versand ganz Europaweit
Wir versenden Ihre Bestellungen zuverlässig mit unseren Premium-Partnern DHL, DPD und Schenker. So erreichen Ihre Pakete Sie im Handumdrehen – ob um die Ecke oder an die entlegenste Adresse Europas.
Zahlungsarten
Wählen Sie aus unseren sicheren und flexiblen Zahlungsoptionen:
Rechnung für Geschäftskunden (B2B) – Zahlung nach Freigabe Ihrer Bestellung
PayPal – schnell und einfach, ohne direkte Weitergabe Ihrer Kontodaten
Vorauskasse – Überweisen Sie den Betrag im Voraus, wir versenden nach Zahlungseingang
Kreditkarte (Visa, MasterCard, American Express) – sicher und sofort belastbar
Alle Zahlarten sind durch moderne Verschlüsselungstechnologien geschützt und garantieren Ihnen maximale Sicherheit und Komfort.


        
        
              
              