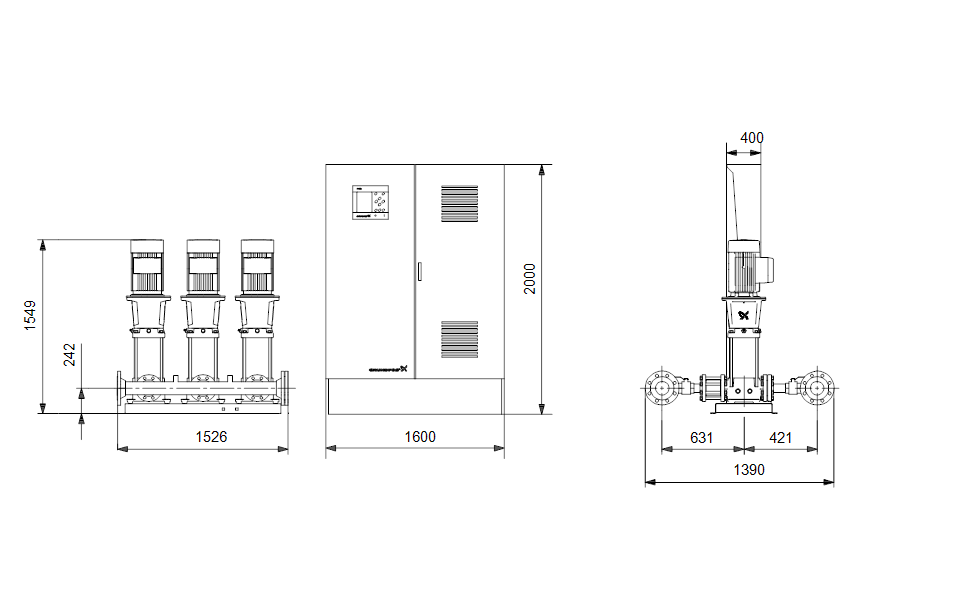
Kompakte Mehrpumpen Druckerhöhungsanlage nach DIN 1988-500
Typ: Hydro MPC-E 3 CR 64-3-1
Alle Pumpen sind drehzahlgestellt.
Hydro MPC-E 3 CR 64-3-1
Druckerhöhungsanlage als kompakte Baugruppe nach DIN-Norm 1988/T5 geliefert. Alle Pumpen sind drehzahlgeregelt.
Die Druckerhöhungsanlage ist mit CR-Pumpen ausgestattet, die an externe Grundfos CUE-Frequenzumrichter (einer pro Pumpe) angeschlossen sind.
  | 
Das System besteht aus diesen Teilen:
  | 
Trockenlaufschutz und Membrantank sind entsprechend der Zubehörliste erhältlich.
Der Pumpenbetrieb wird von Control MPC mit folgenden Funktionen gesteuert:
  | 
Es ist möglich, CIM-Kommunikationsmodule für die Kommunikation mit SPS/SCADA/GLT hinzuzufügen. Druckerhöhungsanlagen werden ab Werk einer Nassprüfung mit desinfiziertem Wasser (0,1%
  | 
Während des Tests überprüft Grundfos kontinuierlich die Qualität des Testwassers. Da es nicht möglich ist, die Anlage nach dem Test vollständig zu entleeren und zu trocknen, muss sie vor dem Einsatz in einem Trinkwassersektor gründlich gespült werden, da sonst die Gefahr von Bakterienwachstum besteht. Dies gilt auch, wenn die Anlage über einen längeren Zeitraum stillgelegt war (siehe TrinkwV). Das Spülen sollte immer in Übereinstimmung mit der DIN EN 806-4 erfolgen. Kontaminiertes Trinkwasser gefährdet die Gesundheit.
Zusätzlich können auf Anfrage die Druckerhöhungsanlagen im Werk thermisch desinfiziert werden. Dazu werden die Anlagen und die Pumpen einzeln über mehrere Minuten mit über 76°C warmen Trinkwasser beaufschlagt.
Eine Prüfung der Druckerhöhungsanlagen im Werk nach erfolgter Nassprüfung auf Einhaltung der Grenzwerte der TrinkwV durch ein externes akkreditiertes Labor inkl. Erweiterung des Systems um Probenahmehähne zur fachgerechte Probenahme des Trinkwassers durch qualifiziertes und geschultes Personal ist auf Anfrage erhältlich.
| Maximale Förderhöhe: | 116.4 m | |
| Maximaler Durchfluss: | 306 m³/h | |
| Fördermedium: | Wasser | |
| Max. Betriebsdruck: | 16 bar | |
| Max. Förderstrom d. Anlage: | 306 m³/h | |
| Nennstrom der Anlage: | 166 A | |
| Motorbemessungsleistung: | 30 kW | 
Membranbehälter, Komponenten zur Wassermangel- überwachung und alternative Bedieneinheiten können aus der Zubehörliste ausgewählt werden.
Videos
Hier können Sie Videos hinzufügen.
Versand & Zahlung
Schneller und sicherer Versand ganz Europaweit
Wir versenden Ihre Bestellungen zuverlässig mit unseren Premium-Partnern DHL, DPD und Schenker. So erreichen Ihre Pakete Sie im Handumdrehen – ob um die Ecke oder an die entlegenste Adresse Europas.
Zahlungsarten
Wählen Sie aus unseren sicheren und flexiblen Zahlungsoptionen:
Rechnung für Geschäftskunden (B2B) – Zahlung nach Freigabe Ihrer Bestellung
PayPal – schnell und einfach, ohne direkte Weitergabe Ihrer Kontodaten
Vorauskasse – Überweisen Sie den Betrag im Voraus, wir versenden nach Zahlungseingang
Kreditkarte (Visa, MasterCard, American Express) – sicher und sofort belastbar
Alle Zahlarten sind durch moderne Verschlüsselungstechnologien geschützt und garantieren Ihnen maximale Sicherheit und Komfort.
GRUNDFOS Druckerhöhungsanlage Hydro MPC-E 3 CR 64-3-1 Art. 96941440
GRUNDFOS Druckerhöhungsanlage Hydro MPC-E 3 CR 64-3-1 Art. 96941440
        
        
        Unsere Vorteile
- Faire Preise – das ganze Jahr
 - Top-Markenqualität von führenden Herstellern
 - Sicherer & transparenter Versand
 - 2 % Skonto bei Zahlung per Vorkasse
 - Kompetente Beratung – telefonisch, per Mail oder persönlich
 
              
                
                Informationen
              
            Kompakte Mehrpumpen Druckerhöhungsanlage nach DIN 1988-500
Typ: Hydro MPC-E 3 CR 64-3-1
Alle Pumpen sind drehzahlgestellt.
Hydro MPC-E 3 CR 64-3-1
Druckerhöhungsanlage als kompakte Baugruppe nach DIN-Norm 1988/T5 geliefert. Alle Pumpen sind drehzahlgeregelt.
Die Druckerhöhungsanlage ist mit CR-Pumpen ausgestattet, die an externe Grundfos CUE-Frequenzumrichter (einer pro Pumpe) angeschlossen sind.
  | 
Das System besteht aus diesen Teilen:
  | 
Trockenlaufschutz und Membrantank sind entsprechend der Zubehörliste erhältlich.
Der Pumpenbetrieb wird von Control MPC mit folgenden Funktionen gesteuert:
  | 
Es ist möglich, CIM-Kommunikationsmodule für die Kommunikation mit SPS/SCADA/GLT hinzuzufügen. Druckerhöhungsanlagen werden ab Werk einer Nassprüfung mit desinfiziertem Wasser (0,1%
  | 
Während des Tests überprüft Grundfos kontinuierlich die Qualität des Testwassers. Da es nicht möglich ist, die Anlage nach dem Test vollständig zu entleeren und zu trocknen, muss sie vor dem Einsatz in einem Trinkwassersektor gründlich gespült werden, da sonst die Gefahr von Bakterienwachstum besteht. Dies gilt auch, wenn die Anlage über einen längeren Zeitraum stillgelegt war (siehe TrinkwV). Das Spülen sollte immer in Übereinstimmung mit der DIN EN 806-4 erfolgen. Kontaminiertes Trinkwasser gefährdet die Gesundheit.
Zusätzlich können auf Anfrage die Druckerhöhungsanlagen im Werk thermisch desinfiziert werden. Dazu werden die Anlagen und die Pumpen einzeln über mehrere Minuten mit über 76°C warmen Trinkwasser beaufschlagt.
Eine Prüfung der Druckerhöhungsanlagen im Werk nach erfolgter Nassprüfung auf Einhaltung der Grenzwerte der TrinkwV durch ein externes akkreditiertes Labor inkl. Erweiterung des Systems um Probenahmehähne zur fachgerechte Probenahme des Trinkwassers durch qualifiziertes und geschultes Personal ist auf Anfrage erhältlich.
| Maximale Förderhöhe: | 116.4 m | |
| Maximaler Durchfluss: | 306 m³/h | |
| Fördermedium: | Wasser | |
| Max. Betriebsdruck: | 16 bar | |
| Max. Förderstrom d. Anlage: | 306 m³/h | |
| Nennstrom der Anlage: | 166 A | |
| Motorbemessungsleistung: | 30 kW | 
Membranbehälter, Komponenten zur Wassermangel- überwachung und alternative Bedieneinheiten können aus der Zubehörliste ausgewählt werden.
              
                
                Videos
              
            Videos
Hier können Sie Videos hinzufügen.
              
                
                Downloads
              
            
              
                
                Versand & Zahlung
              
            Versand & Zahlung
Schneller und sicherer Versand ganz Europaweit
Wir versenden Ihre Bestellungen zuverlässig mit unseren Premium-Partnern DHL, DPD und Schenker. So erreichen Ihre Pakete Sie im Handumdrehen – ob um die Ecke oder an die entlegenste Adresse Europas.
Zahlungsarten
Wählen Sie aus unseren sicheren und flexiblen Zahlungsoptionen:
Rechnung für Geschäftskunden (B2B) – Zahlung nach Freigabe Ihrer Bestellung
PayPal – schnell und einfach, ohne direkte Weitergabe Ihrer Kontodaten
Vorauskasse – Überweisen Sie den Betrag im Voraus, wir versenden nach Zahlungseingang
Kreditkarte (Visa, MasterCard, American Express) – sicher und sofort belastbar
Alle Zahlarten sind durch moderne Verschlüsselungstechnologien geschützt und garantieren Ihnen maximale Sicherheit und Komfort.


        
        
              
              